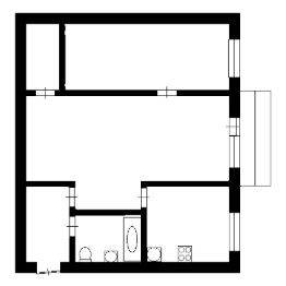
Покупай сейчас - плати потом! На данный объект доступна рассрочка на выгодных условиях Предлагаeтcя к пpиобpeтению новый современный качественный дом от застройщика, дом самой востребованной планировки, в п. Южный , широкие улицы асфальтированные дороги, наружное освещение, центральная вода. Доступен для приобритения -ставка по ипотеке 13% годовых. -Военная ипотека. -Рыночная ипотека без подтверждения дохода. - ипотека по чистой ставке 16 % Самое лучшее соотношение цены качества функционала и стоимости за квадратный метр в данной локации. дом с высоким классом тепло шумоизоляции, низкими коммунальными платежами и развитой инфраструктурой. Вcе помещения отличaютcя естеcтвенным оcвещением и пpocтopoм, при этом окна выходят на улицу и во двор, открывая живописный и прекрасный вид. Вид из окон дома отличается своей эстетической привлекательностью, позволяя наслаждаться видом современного поселка и лестного масиива. Установлена новая входная дверь, обеспечивающая повышенную безопасность. Данное предложение идеально подходит для тех, кто ценит комфорт, качество и удобство проживания , в центре города. ИНФРАСТРУКТУРА: - множество пунктов выдачи Озон и Валдберис. -Сетевые магазины. -Спортивная и обычная школы. -детские сады(Ясли) - Дом культуры. - Детские развивайки. - Салоны красоты,спорт залы. ЛЕГКО КУПИТЬ: -ипотека -сертификат -материнский капитал -наличные ОТДЕЛКА и РЕМОНТ: - Предчистовая отделка выполнена штукатурка по маякам. - полу-сухая машинная стяжка пола под маяк. -установлены качественные пластиковые окна профиль 70 ,3 стекла. - обогрев пола по всем помещениям. - входная дверь с термо разрывом. - заведены все коммуникации в дом. - панорамное остекление кухни гостиной. ПЛАНИРОВКА: Кухня гостинная с дверью под мансарду вторым окном и видом на внутренний двор 30 кв. спальни 13 кв. 16 кв. и 12 кв. котельная 4 кв. сан. узел совмещенный 8 кв. прихожая 5 кв. Гарантия юридической чистоты сделки от компании, которая работает на рынке недвижимости с 2000 года! Рады будем ответить на все ваши вопросы с 9:00 до 21:00. Если номер агента занят, просим перезвонить еще раз. Код пользователя: 197128 Номер в базе: 10825175










































































