


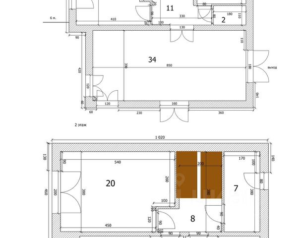
Дом общей площадью 161,7 кв. м, на фундаменте из бетонных блоков, построенный из бруса, сосна просушенная (из шпал сделаны 2 нижних ряда одной стены, все остальное из бруса). Лестница на металлическом каркасе обшита натуральным деревом (осина), с независимым между собой потолком первого этажа и полом второго этажа, утепленным так, что средний чек за отопление зимой гораздо меньше чем у подобных домом с такой площадью. Кроме того, у дома сделано заземление, залит фундамент под кухню, также из бетонных блоков. Дом стоит на участке в 6 соток, на участке большая беседка (основательная, на монолитном фундаменте, из проф трубы, покрытая металлочерепицей), на участке фундамент под баню. Отопление: двухконтурный котел, алюминиевые радиаторы по ленинградской системе. Дом очень теплый, в сильные морозы котел работает на минимальной мощности. Коммуникации: электричество и газ заведены в дом. Пол с подогревом: в прихожей, санузле и входной группе. Первый этаж: Коридор, прихожая, кухня, зал, спальня, санузел. Второй этаж: Три спальни. Рабочая зона, она же проходная. Участок: Канализация септик: большой глубиной - 4 м, отвод канализации из дома. Подготовлен фундамент под баню 6х4 Построена беседка. Навес для машины. В шаговой доступности супермаркеты, пункты выдачи Wildberries и Ozon, кафе и Нежинский парк. Рядом остановка общественного транспорта, откуда можно уехать на двух маршрутах. С Вами работает АН "КВАДРАТ" НАШИМ КЛИЕНТАМ, ПРОДАВЦАМ и ПОКУПАТЕЛЯМ мы вручаем СЕРТИФИКАТЫ и КУПОНЫ от партнеров на покупку мебели для новосёлов на 100 000 рублей, сертификат на покупку кухни со скидкой, купон на покупку входных и межкомнатных дверей с оптового склада Оренбурга, скидка на стройматериалы и ремонтные работы (натяжные потолки, ремонт под ключ и тд.) Если вам понравился этот вариант, но у вас ещё не продана своя недвижимость, предложите нам, возможно у нас прямо сейчас есть на неё покупатель!) Арт. 132863011 Продается дом с участком 6 соток в Оренбургской области.














































































































