


87 662 ₽/м²
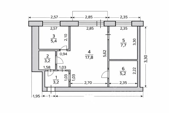
3-комнатная квартира в развитом районе Оренбурга — ул. Восточная, 17 Продаётся просторная и удобная трёхкомнатная квартира по адресу ул. Восточная, 17. Отличный вариант для семьи или тех, кто ищет комфортное жильё в районе с уже сложившейся инфраструктурой. ОБ ОБЪЕКТЕ: Квартира с изолированными комнатами и качественным ремонтом в светлых тонах. Все продумано до мелочей для комфортного и спокойного проживания. Гостиная комната 17,2 кв.м с удобным диваном, функциональным столом и стильными подвесными полками для книг и аксессуаров. Также есть выход на застекленный балкон . Спальная комната 17,2 кв.м с дополнительной шумоизоляцией гарантирует вам спокойный отдых и тишину. В комнате остается кровать и комод., а для хранения ваших вещей оборудована гардеробная зона. Детская комната 10,6 кв.м - теплая (дополнительное утепление внутренней стены) и с грамотным использованием пространства. Полноценные зоны для отдыха и развития. Кухня 5,9 кв.м включает в себя современный кухонный гарнитур с газовой варочной поверхностью, обеденную зону со столом и стульями и декоративными подвесными полочками. Санузел раздельный с современным стильным ремонтом. Во всех комнатах грамотно продумано освещение. Можно подстроить свет под настроение: от яркого рабочего до мягкого вечернего. Новая электрика с защитой от любых скачков напряжения и "умным" выключателем. В жилых зонах уложен ламинат, в мокрых зонах (кухня, ванная, туалет) - практичная плитка. Дополнительный плюс ремонта - уложен утеплитель под навесным потолком. Квартира расположена на 5 этаже 5-этажного дома, что гарантирует тишину и прекрасный вид. О РАЙОНЕ И ИНФРАСТРУКТУРЕ: Дом расположен в одном из удобных и обжитых районов Оренбурга: Всё рядом: магазины, супермаркеты, аптеки, пункты услуг, парк для прогулок и отдыха. Две школы и три детских сада в шаговой доступности — удобно для семей с детьми. Хорошая транспортная доступность (улицы: Восточная, Бр. Знаменских, Карагандинская, Чкалова) — в любой район города вы можете добраться за 15 минут. Спокойный жилой район без плотной застройки и лишнего шума Благоустроенный двор с детской площадкой и местами для парковки вашего автомобиля. Не упустите возможность стать владельцем этой замечательной квартиры! Звоните прямо сейчас, чтобы договориться о просмотре и узнать больше деталей, пока предложение актуально! Арт. 128679088




























































































