Мы используем куки-файлы. Соглашение об использовании
Только на Циан
Площадь дома103 м²
Участок6 сот.
Материал домаПенобетонный блок
Этажей в доме1
Год постройки2025
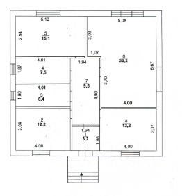
Открыта продажа строящихся домов в поселке Ленина по ул. Степная. Планируется строительство части улицы в одном стиле с разными планировками от 85 до 130 кв.м, земельный участок по 5- 6 соток. Цена домов от 8100тр. Из готовых домов на остатке два дома 103кв.м цена 9 000 000р, планировка на фото 13. Продажа осуществляется от юридического лица, возможна будет сельская или семейная ипотека под 6%! Современная функциональная планировка: кухня-гостинная с витражным окном и выходом на задний двор, 3 спальни, котельная, совмещенный санузел, коридор. Высокое качество строительства, все материалы по ГОСТу. Фундамент: свайно-ленточный, утрамбован глиной, полусухая стяжка пола. Залитие черновой плиты пола производится с обязательным армированием. Стены толщиной в 52,5 см: внутри - керамзитоблоки шириной 30 сантиметров (евроблок) с утеплителем из минеральной ваты в 10 сантиметров, облицовочный кирпич шириной 12,5 сантиметра. Крыша покрыта металлочерепицей цвета антрацит. Окна пластиковые ширина профиля 70см, тройной стеклопакет, энергосберегающие. Дом сдается с отделкой в стиле "Whitе bох": - теплый пол по всей площади дома - полусухая стяжка пола, готовая к финишной отделке; - гипсовая штукатурка стен "под обои"; - выполнена базовая разводка электрического кабеля с сечением, соответствующим критериям ГОСТа; - перекрытия потолка подшиты Полное юридическое сопровождение, одобрение ипотеки, помощь в реализации собственного жилья!
Позвоните автору
Вам ответят на все вопросы

О доме

Площадь

103 м²

Материал дома

Пенобетонный блок

Состояние дома

Нужен ремонт

Количество этажей

1

Количество спален

3

Год постройки

2025

Об участке

Площадь

6 сот.

Категория земель

Земли населённых пунктов

Статус участка

Индивидуальное жилищное строительство

Коммуникации и удобства

Санузел

1 в доме

Канализация

Выгребная яма

Водоснабжение

Скважина

Отопление

Центральное газовое

Электричество

Есть

Газ

Магистральный по границе

Дополнительно

Гараж

Спросите умного помощника
Получите экспертное мнение о жилье

Расположение

Подпишитесь на объявления в этой локации
Мы сообщим, как только поблизости появится что‑нибудь новенькое
Ипотечный калькулятор
  • Базовая
  • Семейная
  • ИТ-ипотека
  • 20%
  • 30%
  • 40%
  • 50%
лет
  • 10 лет
  • 20 лет
  • 30 лет
Загружаем предложения от застройщика и банков
Агентство недвижимости
Хотите продать недвижимость?Разместите объявление на ЦианРазместить
9 000 000 ₽
Цена за метр
87 379 ₽/м²
Ипотека
возможна
Агентство недвижимости
На Циан
9 лет
Объектов в работе
17