Мы используем куки-файлы. Соглашение об использовании
Помещение свободного назначения, 240 м²

Продается помещение свободного назначения, 240 м²

Площадь240 м²
Этаж2 из 2
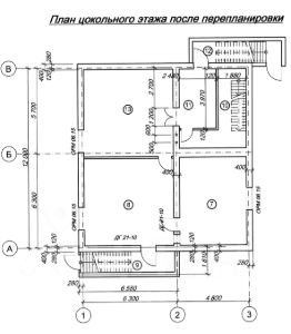
Продаётся доходное отдельно стоящее здание 240 м² с землёй в собственности в ЦЕНТРЕ города Ясный! Прямая продажа от собственника, без комиссий и посредников. Основные характеристики: Общая площадь здания — 240 м² (2 полноценных этажа по 120 м²); Земельный участок — в собственности; Год постройки — 2005; Своя газовая котельная (автономное отопление — экономия огромная!); Естественная вентиляция, кондиционирование; Электричество 380V; Центральный водопровод и канализация; Два санузла на цокольном этаже, один на первом; Отдельный чёрный вход + зона разгрузки; Большая парковка перед зданием + место для посетителей. Расположение — идеальное: Абсолютный центр города Ясный Рядом банк, администрация, магазины, остановки Высокий пеший и автомобильный трафик Текущее использование и доходность: Помещения частично сданы в аренду (арендаторы готовы остаться при новом собственнике). Текущий доход можно увеличить — часть площадей требует косметического ремонта (готовы обсуждать скидку на ремонт). Цена: 9 500 000 руб. Реальный торг и скидка за быструю сделку! Все документы готовы к сделке, чистая история, обременений нет.
lock

Войдите или зарегистрируйтесь
для просмотра информации

Просматривайте условия сделки и всю информацию об объекте
Сохраняйте фильтры в поиске и не вводите заново
Доступ к избранному с любого устройства
Неограниченное добавление в избранное
Позвоните автору
Вам ответят на все вопросы
Остались вопросы по объявлению?
Позвоните владельцу объявления и уточните необходимую информацию.
  • Инфраструктура
  • Похожие рядом
  • Тип зданияАдминистративное здание
  • Общая площадь240 м²
Естественная вентиляция
Центральное кондиционирование
Автономное отопление
Сигнализация
Помощь надёжных риелторов
Риелтор партнёр Циан поможет купить или продать любую недвижимость
СобственникID 137322583
  • Предоставил паспорт
9 500 000 ₽
126 992 $
108 099
Цена за метр
39 584 ₽
Налог
УСН
СобственникID 137322583
  • Предоставил паспорт